Magnolia

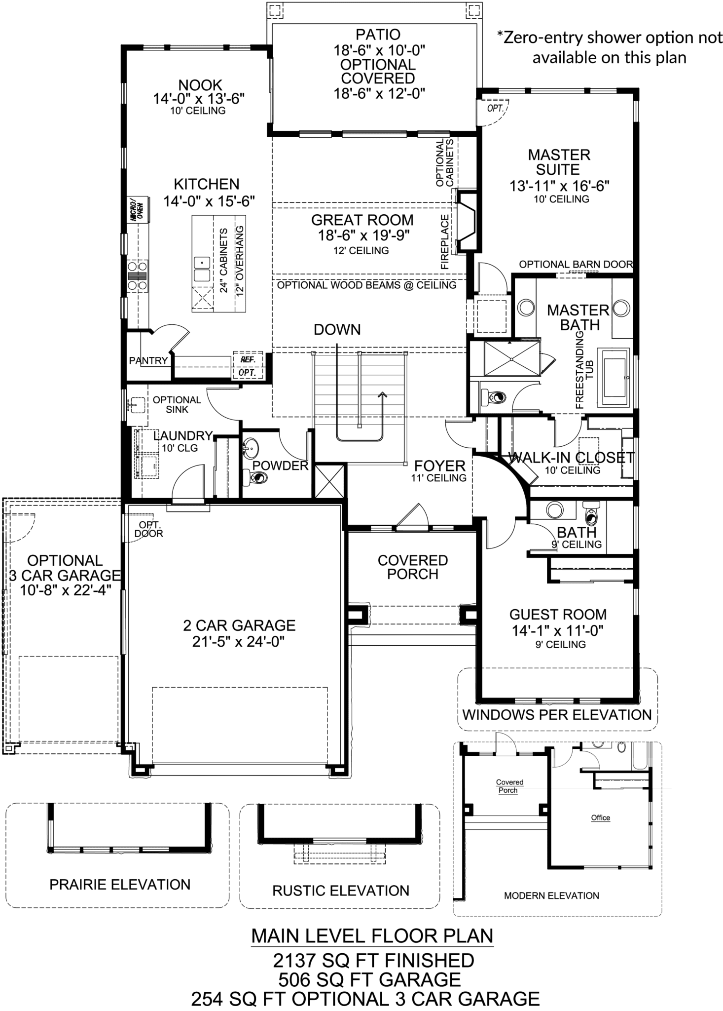
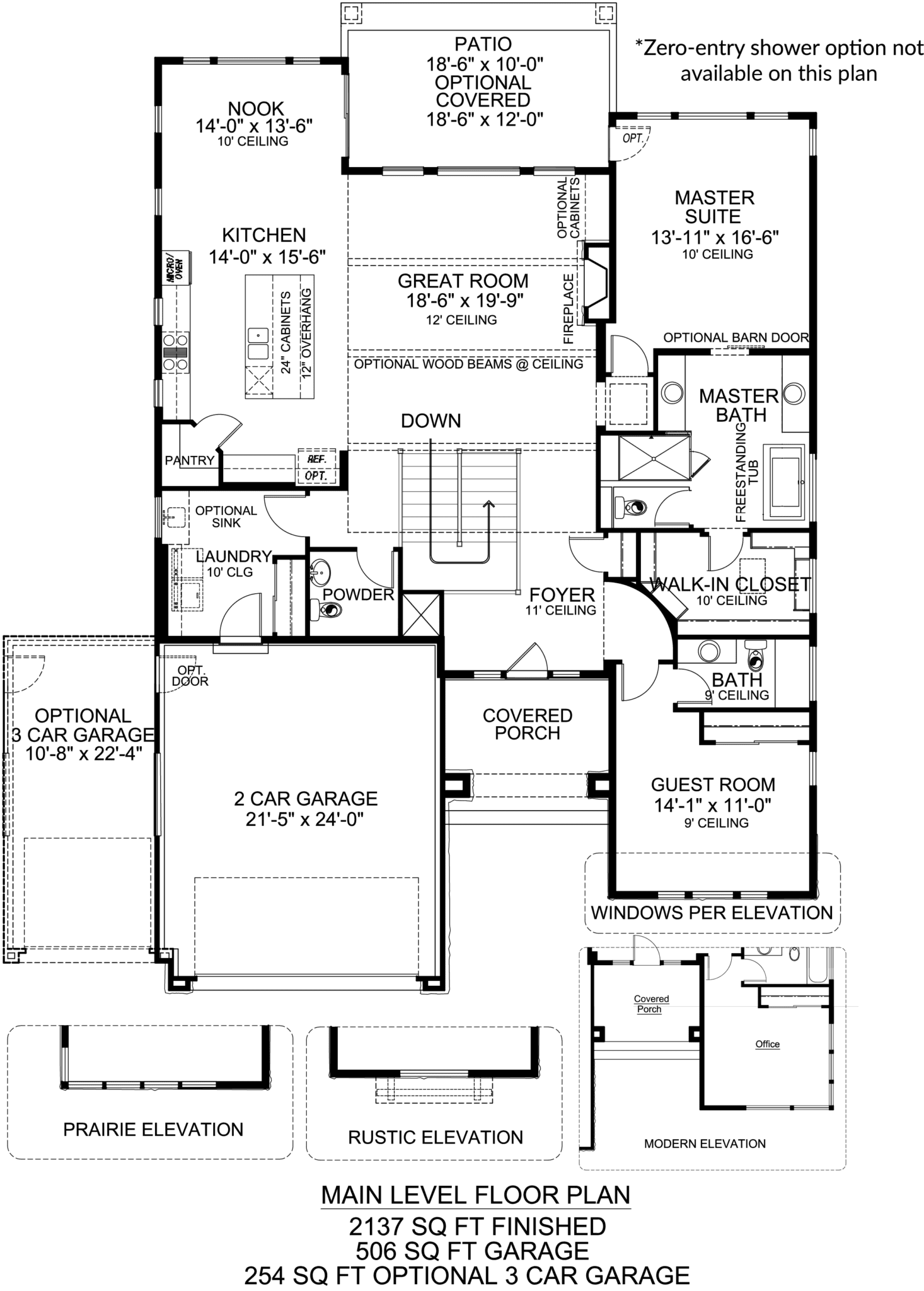
Saddletree is excited to present the Magnolia floor plan. The interior of the home includes four bedrooms, four bathrooms, and a large 28’x23’ rec room in the basement. The main level boasts a large 18’-6”x19’ great room with 11’ ceilings throughout and a breathtaking fireplace. The expanded laundry room has additional room for cabinetry and includes a coat closet and an optional sink. The secondary bedroom on the main level features an attached full bathroom and could include an optional covered porch. The master bedroom suite exhibits an extravagant walk-in closet and has direct access to the rear patio. The gorgeous five-piece master bathroom features a large shower and a luxurious freestanding tub. The Lower level contains a large rec room, two additional bedrooms, and a full bathroom.

 

FLOOR PLANS

View All

Work With Us

Pink Realty is one of the most successful teams in the world - ranking #1 in Colorado, where their well-established reputation & team of over 100 well-rounded agents have become a force to be reckoned with. CEO - Monica Breckenridge is recognized & admired for her extensive market knowledge, unparalleled service, & being the founder of Pink Realty in 2009. Monica remains the #1 agent in Colorado & #4 in the nation.

Follow Us on Instagram

d